Light Study
Light Study
Light Study
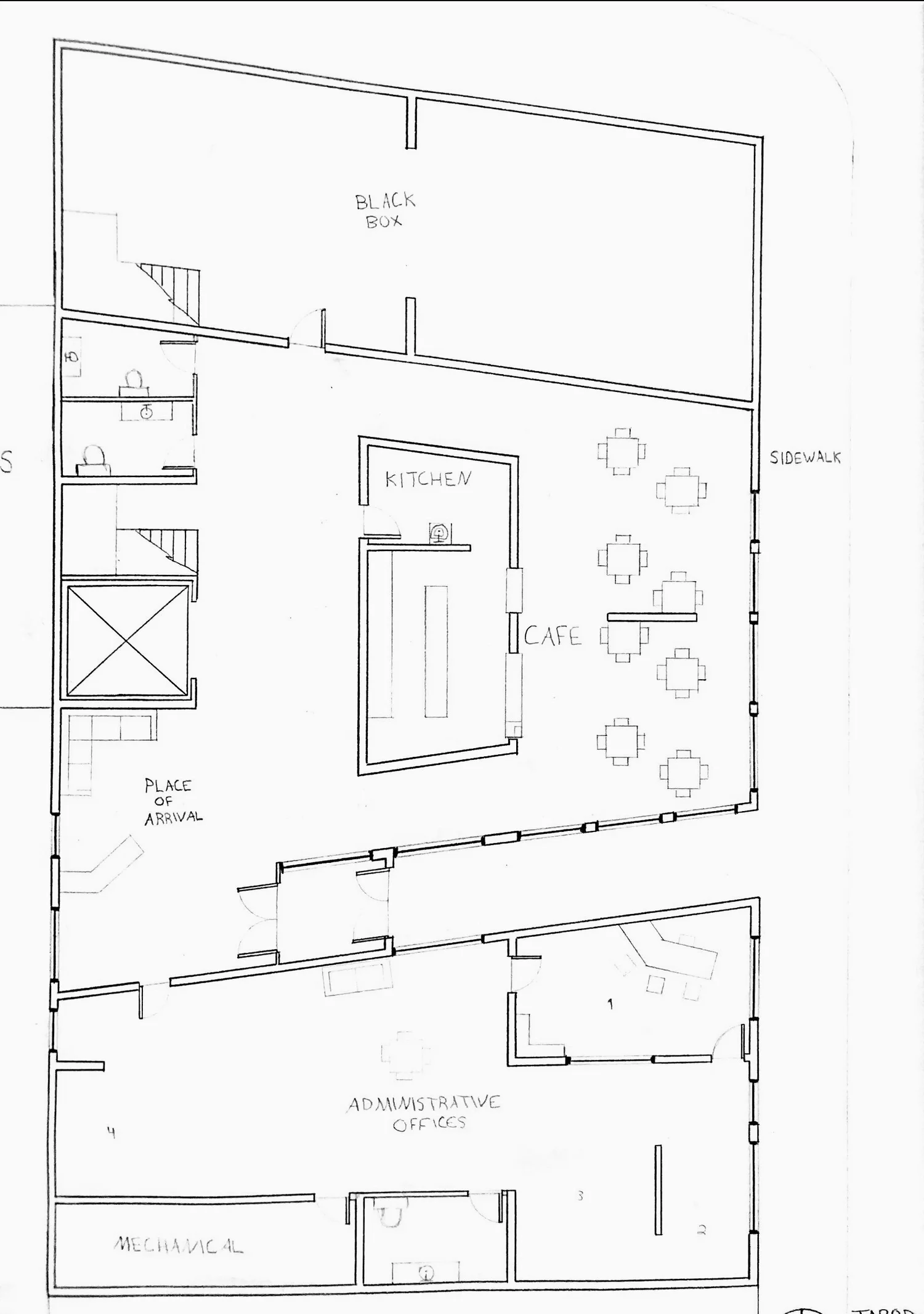
Ground Floor Plan
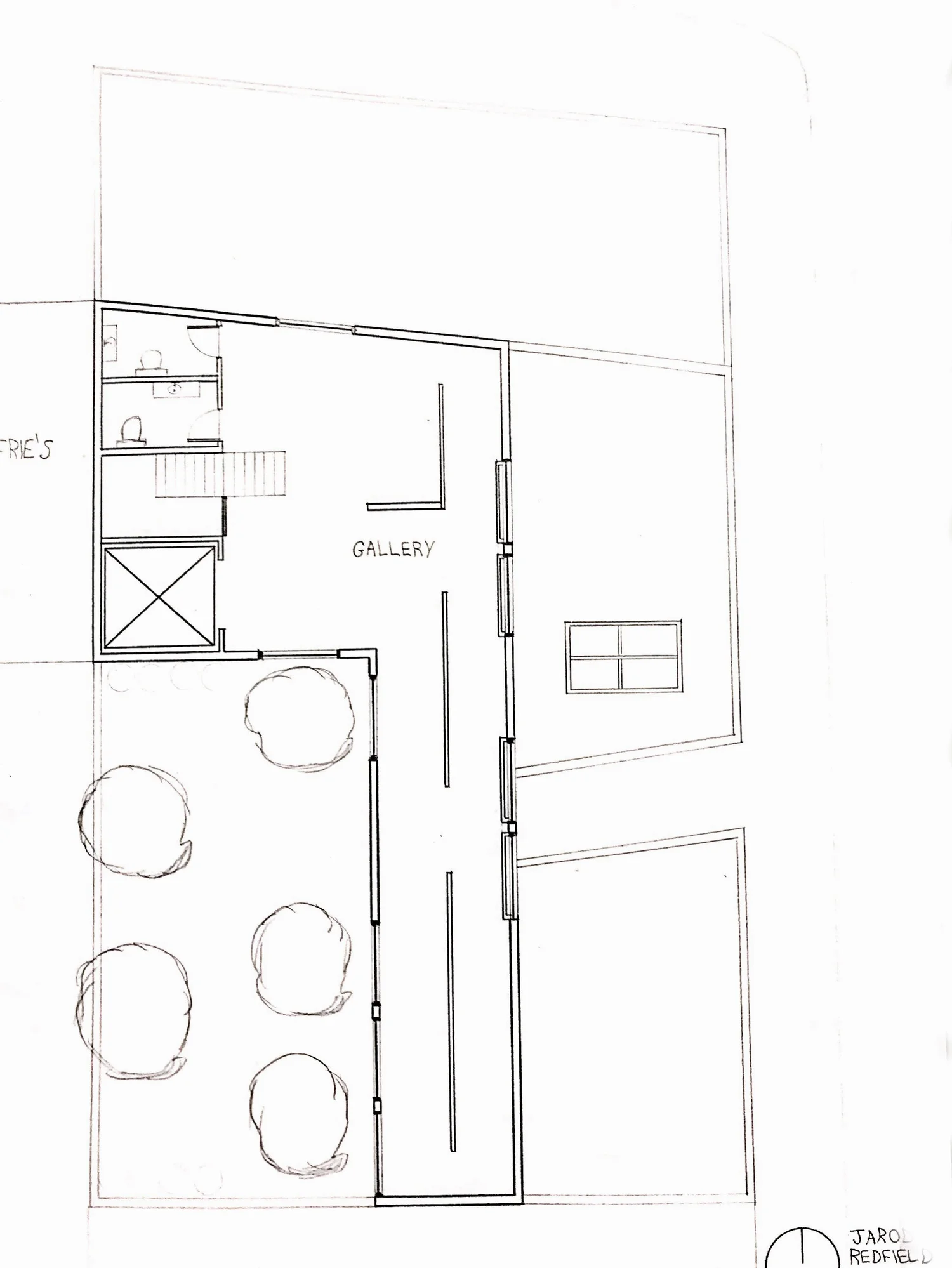
Second Floor Plan
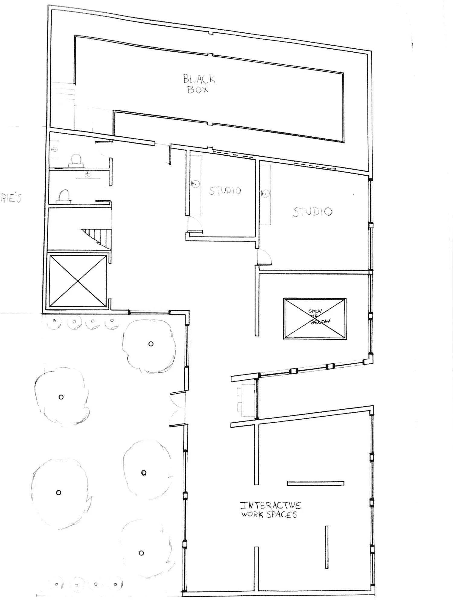
Third Floor Plan
Roof Plan
Front Elevation
North/South Section
prev / next